打印頁面
< 返回
目錄 > 有關教育局 >
表格及通告
-
表格
-
通告
< 返回
目錄 > 課程發展及支援 >
主要教育層面
-
幼稚園教育
-
小學教育
-
中學教育
< 返回
目錄 > 課程發展及支援 >
評估
-
基本能力評估
< 返回
目錄 > 學生及家長相關 >
生涯規劃教育及升學就業輔導
-
生涯規劃教育
-
商校合作計劃
< 返回
目錄 > 學生及家長相關 >
安全事宜
-
學生安全
-
校巴服務
< 返回
目錄 > 學生及家長相關 >
非華語學童
-
非華語學童教育服務
-
最新資訊
-
概覽
< 返回
目錄 > 學生及家長相關 >
計劃及設施
-
計劃
-
設施
< 返回
目錄 > 教師相關 >
資格、培訓與發展
-
資格
-
培訓
-
發展
< 返回
目錄 > 學校行政及管理 >
政策文件及報告
-
審計署署長第三十九號報告書小學教育
主要內容

[資料庫] 可供申辦的直資高中學校及直資/資助中學校舍

 

(表格B附錄II )

圖表(B)--可供辦學團體申辦的直接資助/資助中學或
直接資助高中學校校舍

圖表簡介 PDF (10 KB)

項目
編號
所屬區域
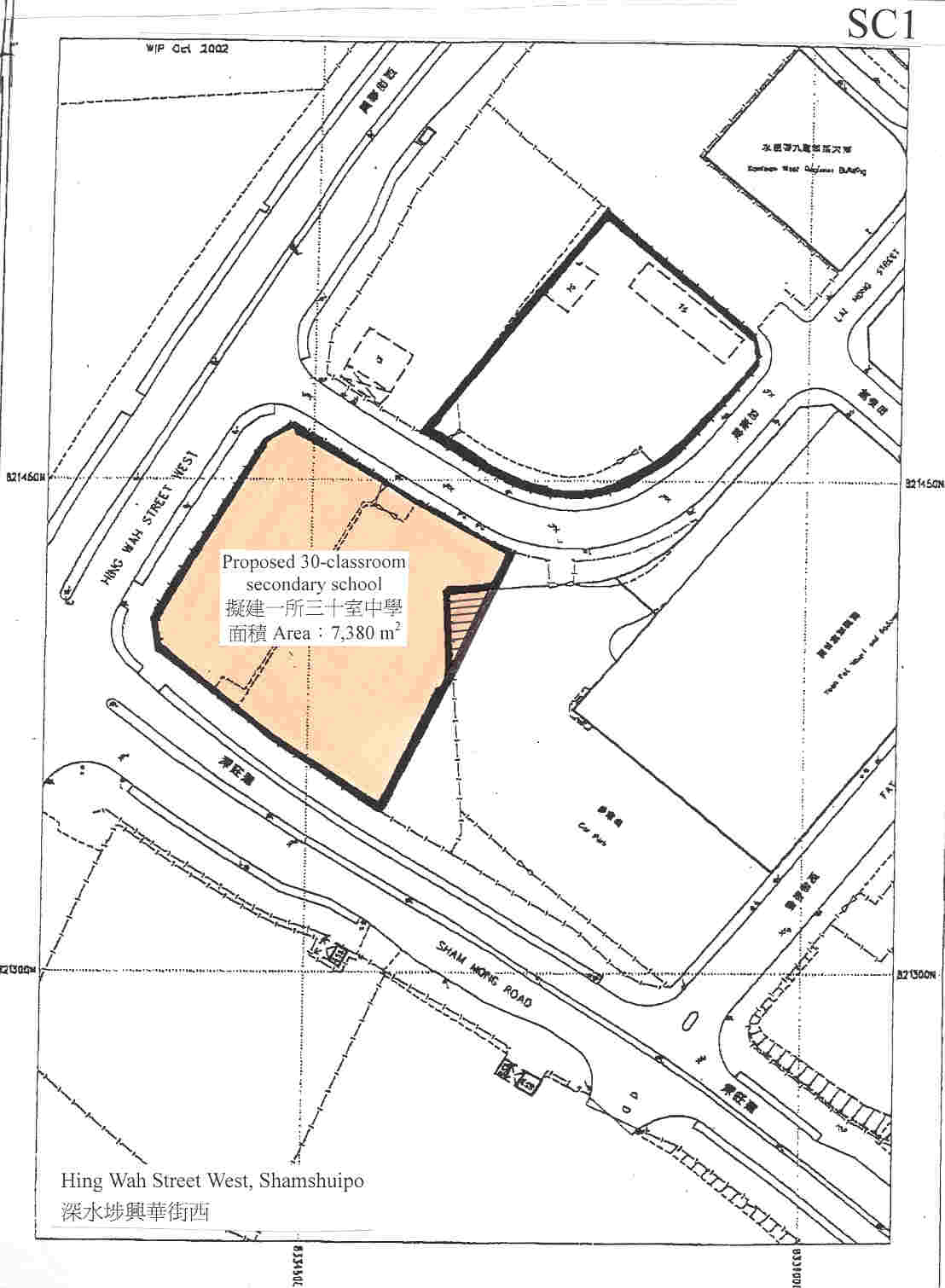
地點 (下載地圖)
學校設計 /
課室數目 /
大約面積
預計落成日期
SC1
註 4,5
深水埗
按照2000年的標準設計
設有30個課室
7,380平方米
2004
SC2
註 1,4
西貢
按照2000年的標準設計
設有30個課室
6,850平方米
2004
SC3
註 4
南區
黃竹坑南風道   (210 KB)
按照2000年的標準設計
設有30個課室
8,030平方米
2005
SC4
註 1,3,4
元朗
元朗舊墟第16區   (134 KB)
非標準設計
設有30個課室
6,000平方米
2005

 

圖表(C)--可供辦學團體申辦的直資/資助中學校舍

圖表簡介 PDF (9 KB)

項目
編號
所屬區域
地點 (下載地圖)
學校設計 /
課室數目 /
大約面積
預計落成日期
SS1

1,2,3
元朗
按照2000年的標準設計
設有30個課室
6,950平方米
2005
SS2

1,2,3
元朗
非標準設計
設有30個課室
6,950平方米
2006

 

註:

  1. 這所校舍或可與相鄰學校共用部分設施,例如足球場等。

  2. 會與毗鄰三所學校共用出入口、上落客區、車輛通道和停車場。共用設施的日常管理和維修工作,將由四所學校共同負責。

  3. 這所校舍或會與毗鄰小學(將於同年落成)結龍。該所小學校舍已於上次的校舍分配工作中分配給辦學團體。

  4. 如各項評審因素相若,選擇SC1至SC4作營辦高中學校的申請會獲優先考慮。預期直資高中學校會提供創新和多元化的高中課程,以配合學生的不同才能和需要,並且讓他們在完成中五課程後有更彈性的升學途徑選擇。

  5. 位置圖中的斜線部分將會延遲移交,該幅土地須待地政專員定下日期方可交予辦學團體。辦學團體可按當時的政策向政府申請資助,用以圍起整個地盤。

 

 

備註:

  1. 預期在二零零四年及零五年落成的校舍,由於建校工程已經或即將展開,申辦團體在校舍設計及建築方面的參與將非常有限。預期在二零零六年落成的校舍,申辦團體可以就圖則設計方面建議有限度的改動。

  2. 以上校舍分配一覽表是根據現時掌握的資料編製。校舍落成日期受各種因素影響,包括學額需求、城市規劃委員會是否批准該地作建校用途、技術可行性研究結果、實際建校工程的進度、公眾諮詢結果以及立法會財務委員會是否撥款等。

  3. 申辦團體可選擇最符合其辦學抱負、使命和發展計劃的辦學地點。不過,為盡量提高獲分配校舍的機會,申請團體在提出其意願時,不宜將選擇局限於少數地點。